Attico in vendita

Correggio, Via Leonardo da Vinci
€ 528.000
5 locali 5 locali
176 Mq 176 Mq
2 bagni 2 bagni

Attico in vendita

Correggio, Via Leonardo da Vinci

Descrizione annuncio

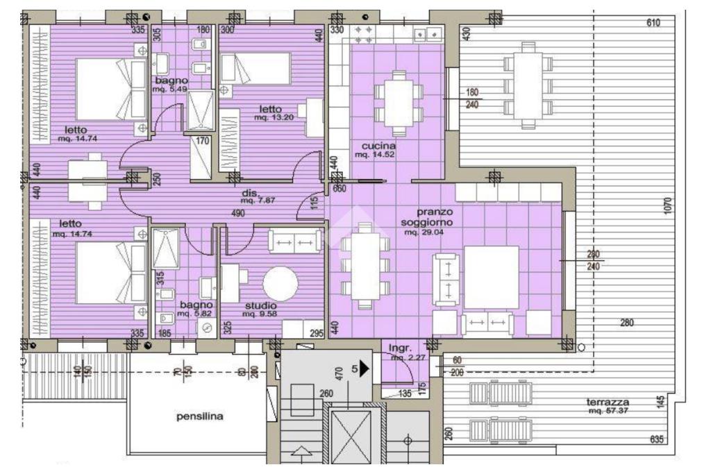
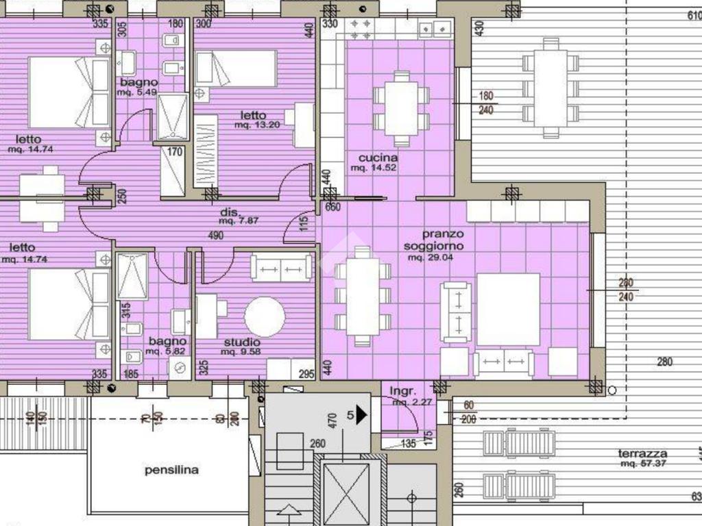
CORREGGIO: a due passi dal centro storico , proponiamo un appartamento di nuova costruzione, con consegna prevista per aprile 2027. Situato al piano ultimo di un edificio moderno, l'immobile si estende su 176 mq e offre spazi ben distribuiti. La zona giorno è composta da una sala e una cucina separati di 45mq, ideali per chi ama la funzionalità e l'organizzazione degli ambienti. Le due camere da letto matrimoniali garantiscono comfort e privacy, mentre i due bagni, entrambi dotati di doccia, offrono praticità e stile, nel reparto notte troviamo altre due camere da letto, di cui una utilizzabile come studio. Un ampio terrazzo di quasi 60mq completa l'offerta, perfetto per momenti di relax all'aperto. L'appartamento è dotato di aria condizionata e beneficia di un impianto fotovoltaico personale da 2 kW, assicurando efficienza energetica in classe A4. Completano la proprietà un box auto e un posto auto esterno oltre alla cantina ( quest'ultime non sono comprese nel prezzo avendo la possibilità di acquistare la varie tipologie presenti ) , oltre alla comodità dell'ascensore.

prevedendo l'Intervento il miglioramento simico ed energetico, l'acquirente avrà accesso ai crediti fiscali derivanti dalle agevolazioni sismabonus, potendo così contare su una detrazione fiscale pari a circa il 10% sul prezzo di acquisto dell' immobile.

Per maggiori informazioni puoi contattare Federico Stermieri al numero 3462288256.

>Specializzati nella gestione delle permute:

Se per acquistare la tua nuova casa hai bisogno di vendere il tuo attuale immobile contattaci per una consulenza/valutazione gratuita e senza impegno.

>Presso la nostra agenzia è possibile, grazie alla consulenza del credito Kiron (Gruppo Tecnocasa Holding SPA) accedere a servizi e prodotti come:
- Mutui prima o seconda casa
- Mutui ristrutturazione
- Sostituzione del mutuo attuale con uno a condizioni più vantaggiose

Per tutelare la privacy dei nostri clienti l'indirizzo del presente annuncio potrebbe non corrispondere in maniera precisa all'esatta ubicazione dell'immobile.

Mostra tutto

Nelle vicinanze

Trasporto pubblico Trasporto pubblico
Correggio
Correggio
580 m
Ricariche auto elettriche Ricariche auto elettriche
Correggio Tondelli | EnelX
220 m
Correggio Carducci
240 m
Correggio Vittorio Veneto
270 m
Correggio 2 Agosto | EnelX
550 m
Correggio Fratelli Cervi | EnelX
670 m
Scuole Scuole
Liceo Statale Rinaldo Corso
530 m
Guglielmo Marconi
560 m
Don Andreoli
560 m
Scuola Primaria "G. Rodari"
650 m
Luigi Einaudi
650 m
Farmacia Farmacia
Farmacia Centrale
280 m
Farmacia
350 m
Farmacia Comunale
760 m
Ospedali Ospedali
Ospedale San Sebastiano
430 m
Supermercati Supermercati
CONAD
950 m
COOP
1,3 Km
Bar Bar
Bar
490 m
Ristoranti Ristoranti
Ristorante Pizzeria Doppio Senso
320 m
Mostra tutto

Caratteristiche

Rif.:
61162185
Piano:
3 di 3 con ascensore (ultimo Piano)
Box:
2
Posti auto:
1
Balconi:
1
Terrazzi:
1
Mostra tutto
Prezzo Prezzo
€ 528.000
Rata mutuo Rata mutuo
€ 2.508 / mese
Spese annue Spese annue
€ 0
Proponi il tuo prezzoProponi il tuo prezzo

Classe Energetica

A4
A4
A4
A4
A4
A4
A4
A4
A4
EP invernale del fabbricato:
EP estiva del fabbricato:
Anno di costruzione:
2026
Riscaldamento:
Autonomo
Tipo impianto:
A pavimento
Tipo alimentazione:
Pannelli

Ti interessa visionare l'immobile?

Fissa un appuntamento  Fissa un appuntamento

Richiedi informazioni

Clicca su Leggi per aprire l'informativa
* Questi campi sono obbligatori

Calcola il tuo mutuo

Semplice e senza impegno
Anticipo

( % )
Mutuo

( % )

pochi semplici passi

inserisci i tuoi dati
Questionario completato
Grazie per aver richiesto un appuntamento senza impegno con un nostro Consulente del Credito e Assicurativo.

Hai inserito correttamente tutti i dati necessari e a breve riceverai una e-mail con un link da convalidare per inviare i tuoi dati.
Affiliato
Agenzia Correggio Srl
P.zza Recordati, 11 42015 Correggio (RE)

Il nostro staff


  • Vittorio Tarantini
    Affiliato

  • Filippo Pinotti
    Collaboratore

  • Federico Stermieri
    Collaboratore
P.zza Recordati, 11 42015 Correggio (RE)
Zona: Correggio-Fazzano-Mandrio-Prato-Budrio-Fosdondo-Canolo
Mostra su mappa
Orari: dal Lunedì al Venerdì 09:00-13:00. 15:00-20:00 Sabato dalle 09:00-13.00. Sabato pomeriggio su appuntamento
Affiliato
Agenzia Correggio Srl
P.zza Recordati, 11 42015 Correggio (RE)

2026 Tecnocasa Franchising S.p.A. - P. IVA 08365160152 - Via Monte Bianco 60/A 20089 Rozzano (MI). Ogni agenzia ha un proprio titolare ed è autonoma. Privacy policy | Policy utilizzo | Cookie policy